Industrial Projects

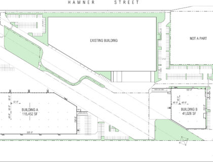
Hamner Business CenterEastvale, CA

Both buildings were sold to a single manufacturing user. Completed December 2017. Joint venture with Crow Holdings Industrial.

  • Total Project Size:
    156,478 Sq. Ft.
  • # of Buildings:
    2
  • Clear Height:
    30'
  • Acres:
    9.31
  • Status:
    Completed