Skip to content
Procyon Distribution Center

Las Vegas, NV

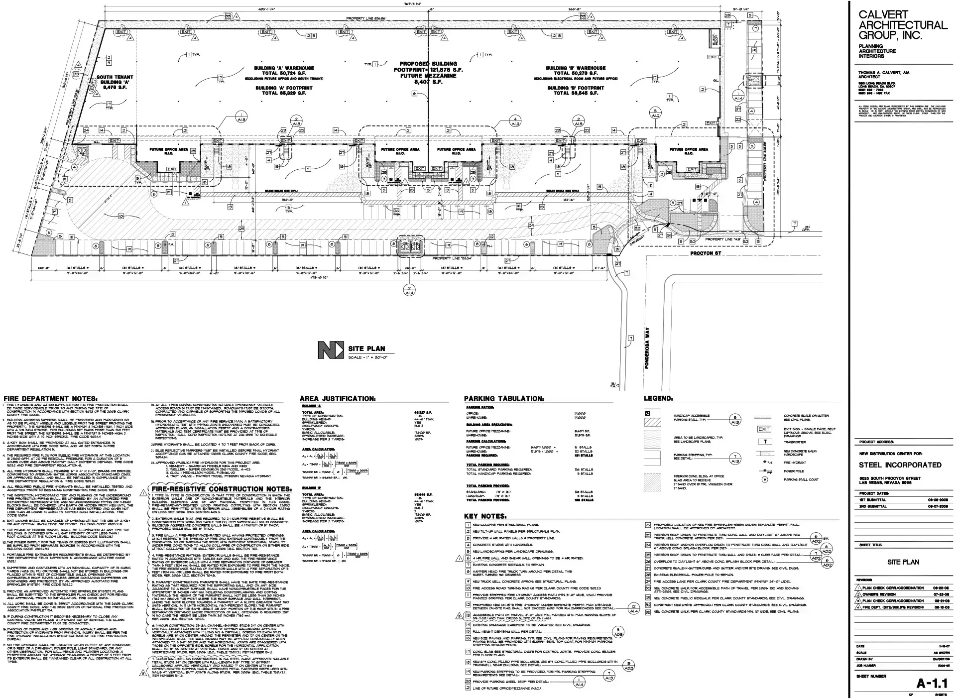
Procyon Distribution Center

Speculative Class-A industrial building located in the stadium corridor of Las Vegas. Despite being in the middle of the Global Financial Crisis of 2008, the warehouse was completed in 2010 and was the only transaction completed in the valley over 100,000 SF that year. Procyon Distribution Center was also a finalist in the 2011 NAIOP Southern Nevada Chapter Spotlight Awards for spec industrial building of the year.

  • Submarket:

    Southwest Las Vegas, NV
  • Total Project Size:

    121,875 SF
  • Building Square Feet:

    121,875 SF
  • Status:

    Completed
  • Completion Date:

    March 2010