Industrial Projects

Gibson Industrial Park
Gibson Industrial Park

Gibson Industrial ParkHenderson, NV

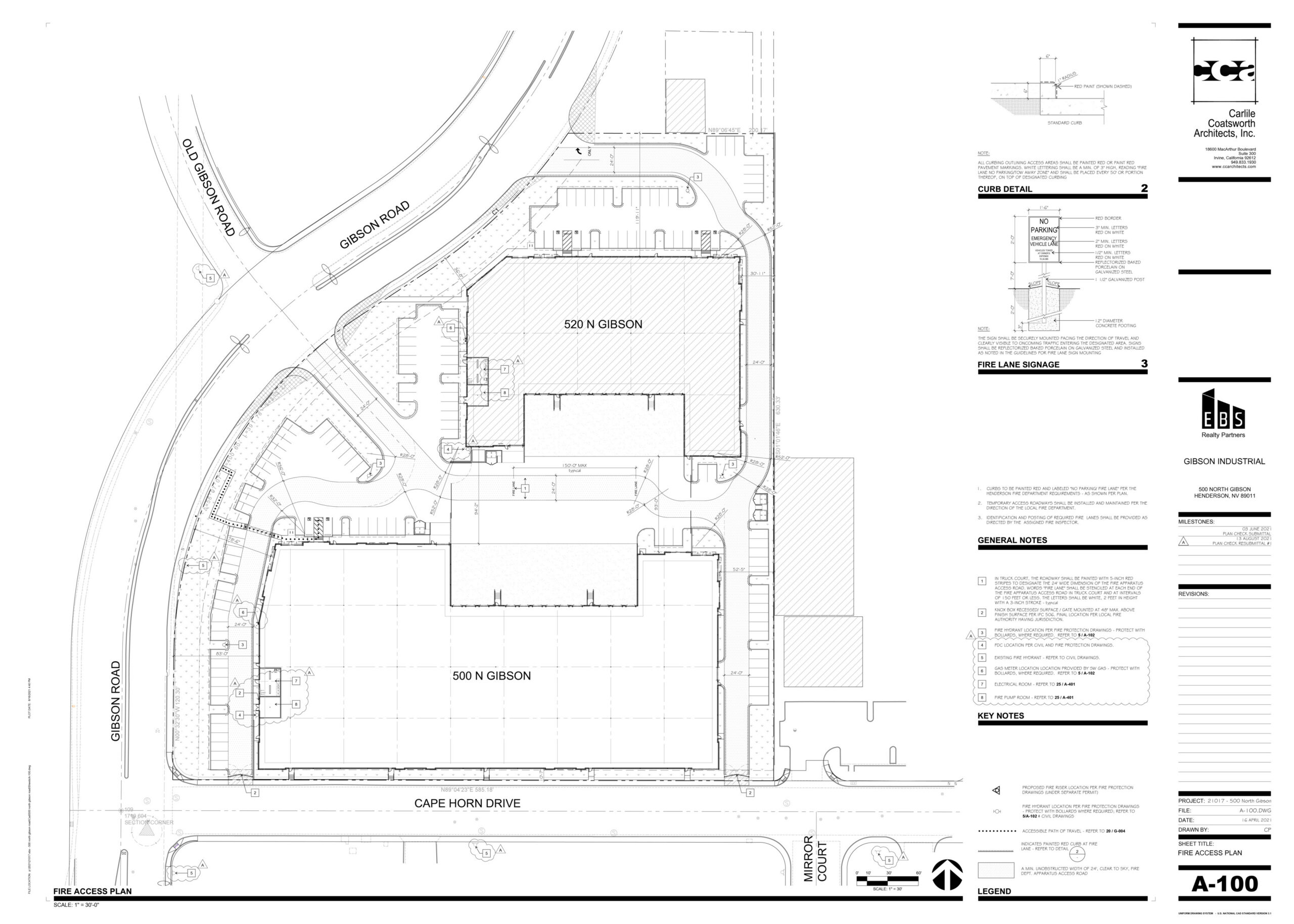
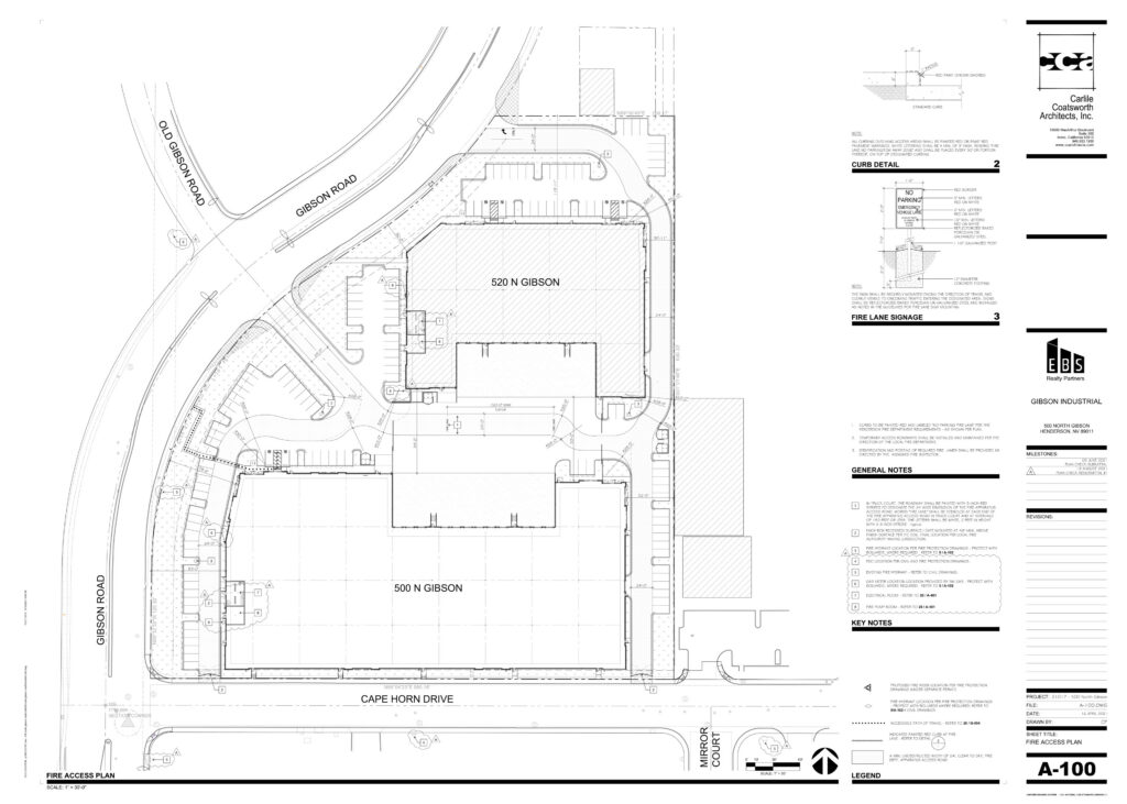
Speculative industrial development comprised of two buildings located at 500 N. Gibson Ave (86,051 SF), Henderson, NV, and 520 N. Gibson Ave (41,442 SF) Henderson, NV.  Marketed for sale or lease.  Both buildings were pre-leased to Fortune 500 Tenants, and subsequential sold as a leased investment to a 1031 Exchange Buyer at completion in November 2022.

  • Total Project Size:
    127,493 SF
  • # of Buildings:
    2
  • Clear Height:
    32'
  • Acres:
    6.78
  • Status:
    Complete