Skip to content
Hughes @ Alton

Irvine, CA

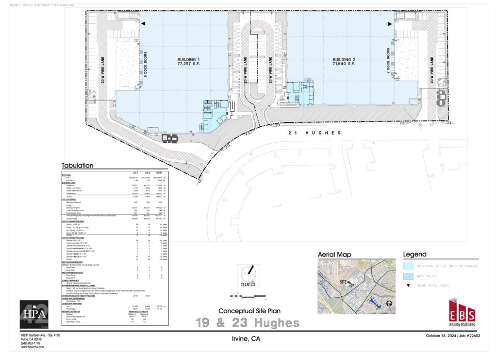
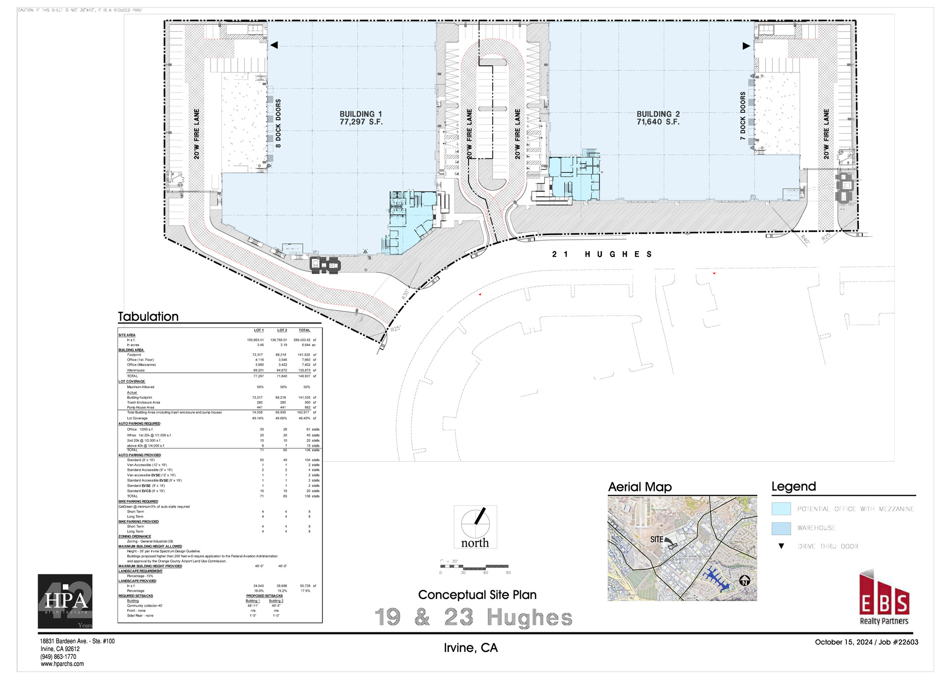
Hughes @ Alton

Speculative industrial development. EBS acquired three existing buildings in the Irvine Spectrum and processed entitlement for two new Class A light industrial buildings on the site. The existing improvements were raised to make way for the new development and construction is nearing completion. Expected completion date, December 2025.

  • Submarket:

    Orange County, CA
  • Total Project Size:

    148,937 SF
  • Building Square Feet:

    Building 1: 77,297 SFBuilding 2: 71,640 SF
  • Status:

    Under Construction
  • Completion Date:

    December 2025
  • Available

Marketing Information

Marketing Update

Both buildings are currently for lease or sale.

Marketing Team

Steve Wagner
JLL
(949) 885-2923
steve.wagner@jll.com