Skip to content
Lexington Logistics Center

San Bernardino, CA

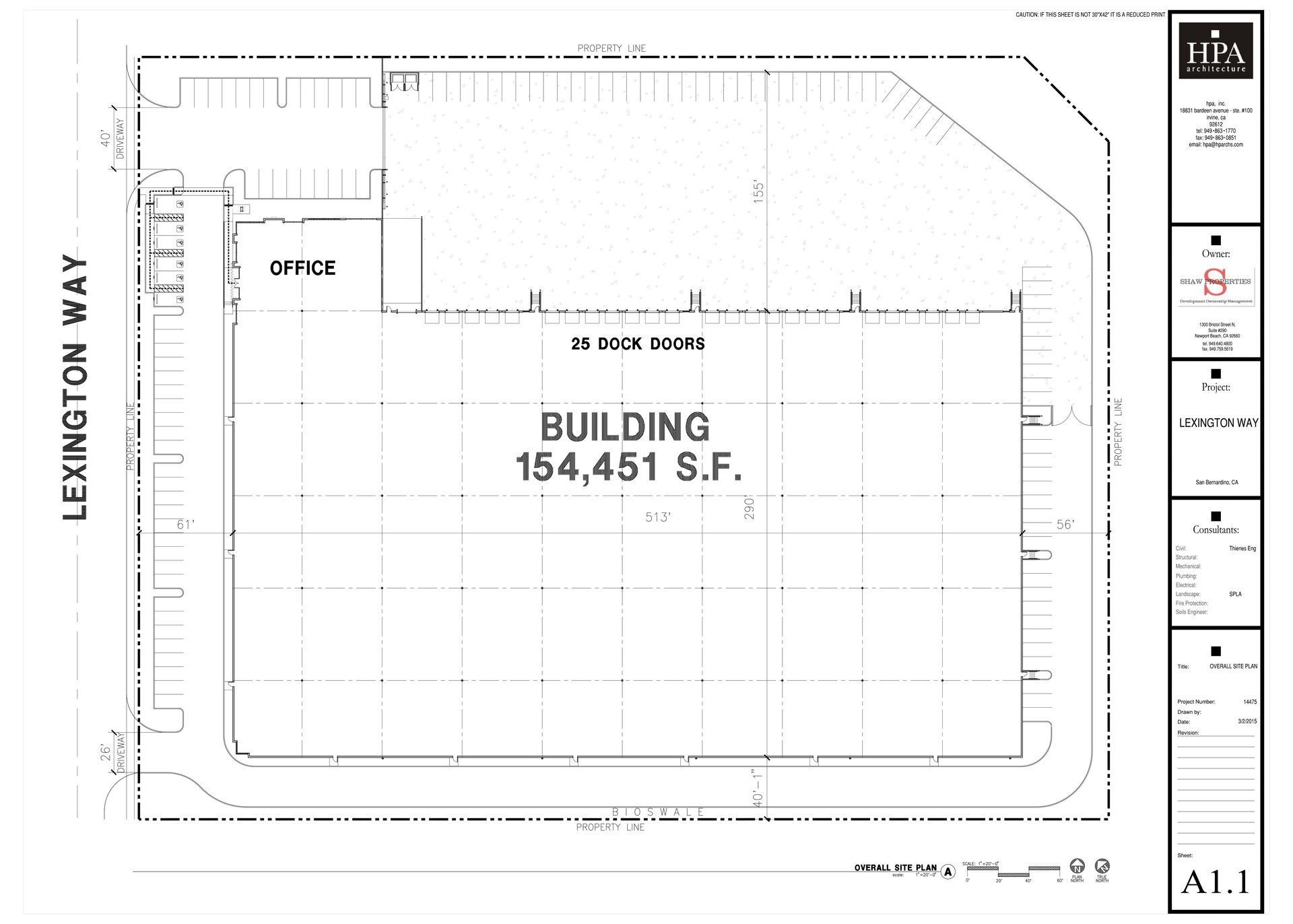
Lexington Logistics Center

The Hallmark-Lexington Logistics Center was a speculative development on a 7.01 acre parcel at 2705 Lexington Way, City of San Bernardino, CA. Shortly after completion the completed building was sold to a major bottled water company that planned to utilize the facility for used container recycling.

  • Submarket:

    Inland Empire East, CA
  • Total Project Size:

    154,451 SF
  • Building Square Feet:

    154,451 SF
  • Status:

    Completed
  • Completion Date:

    October 2017