Skip to content
Civic Center Freeway Logistics Center

North Las Vegas, NV

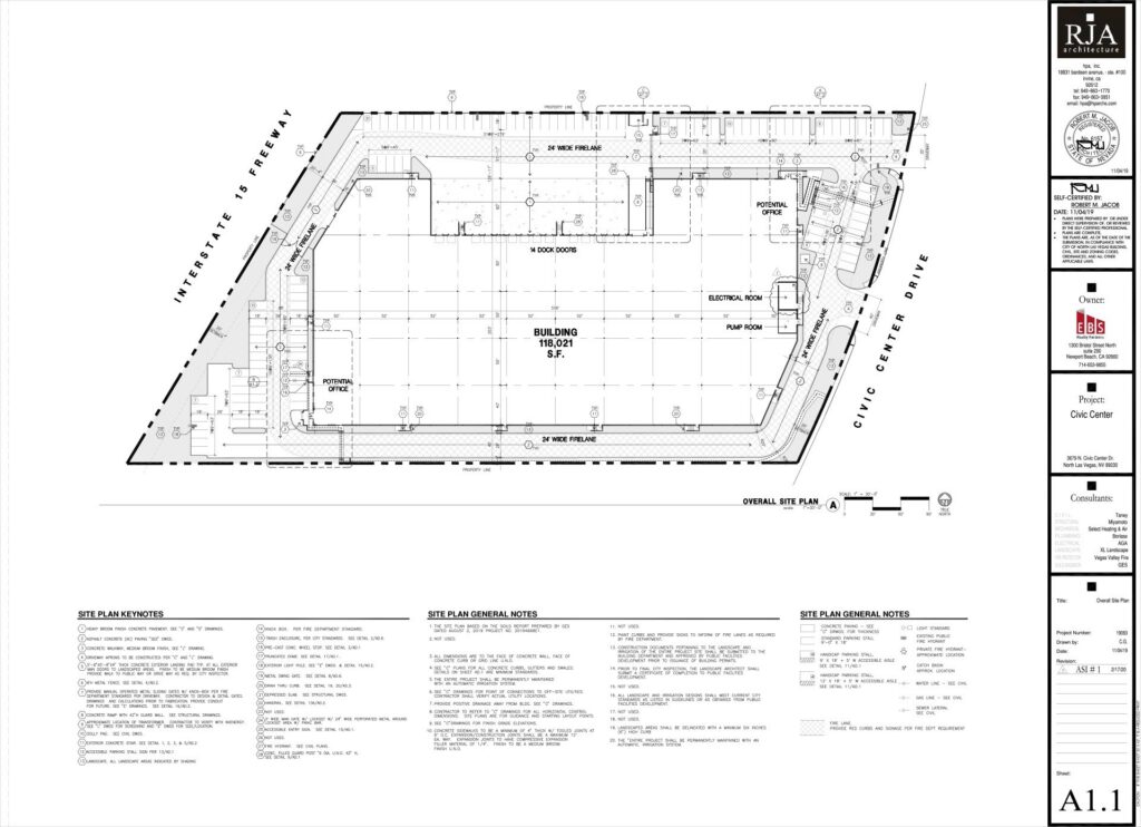
Civic Center Freeway Logistics Center

Speculative Class A industrial development located on Civic Center Drive, with I-15 highway frontage in North Las Vegas, NV. The building was sold at completion in March of 2021 to a manufacturer relocating from Southern California.

  • Submarket:

    North Las Vegas, NV
  • Total Project Size:

    118,021 SF
  • Building Square Feet:

    118,021 SF
  • Status:

    Completed
  • Completion Date:

    March 2021