Skip to content
Platinum Triangle Stadium Center

Anaheim, CA

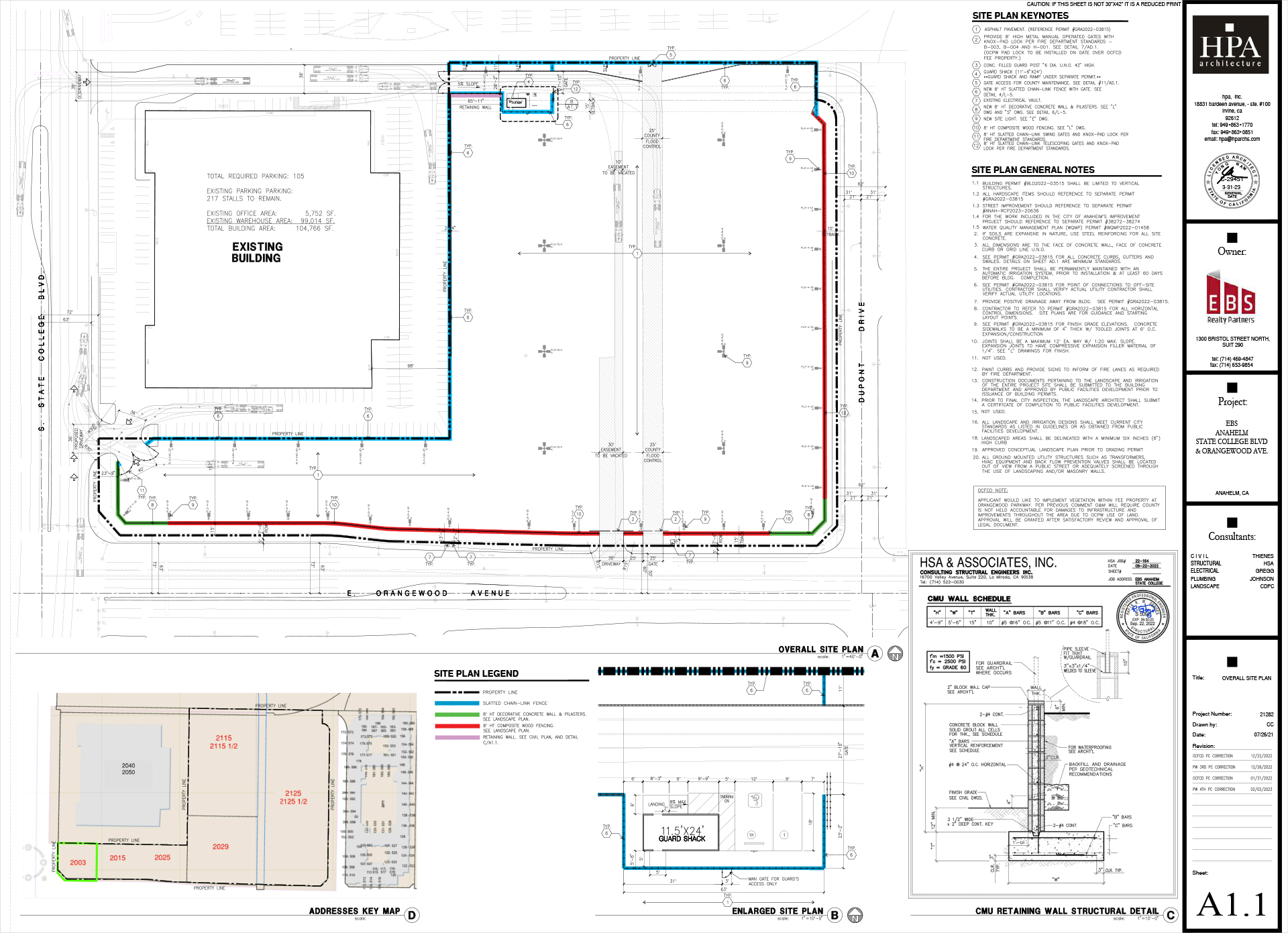
Platinum Triangle Stadium Center

Existing warehouse acquisition with approximately 8 acres of excess land in the Platinum Triangle district of Anaheim immediately adjacent to Angel Stadium. The project planned to renovate the existing warehouse and pave, fence, and light the vacant land to support a future building occupant with ancillary outdoor storage or a stand-alone IOS yard for a separate tenant. The project was sold for a profit prior to breaking ground on the redevelopment plan.

  • Submarket:

    Orange County, CA
  • Total Project Size:

    106,000 SF
  • Building Square Feet:

    106,000 SF
  • Status:

    Completed
  • Completion Date:

    June 2024