Skip to content
Rainbow @ Blue Diamond Logistics Park

Rainbow @ Blue Diamond Logistics Park

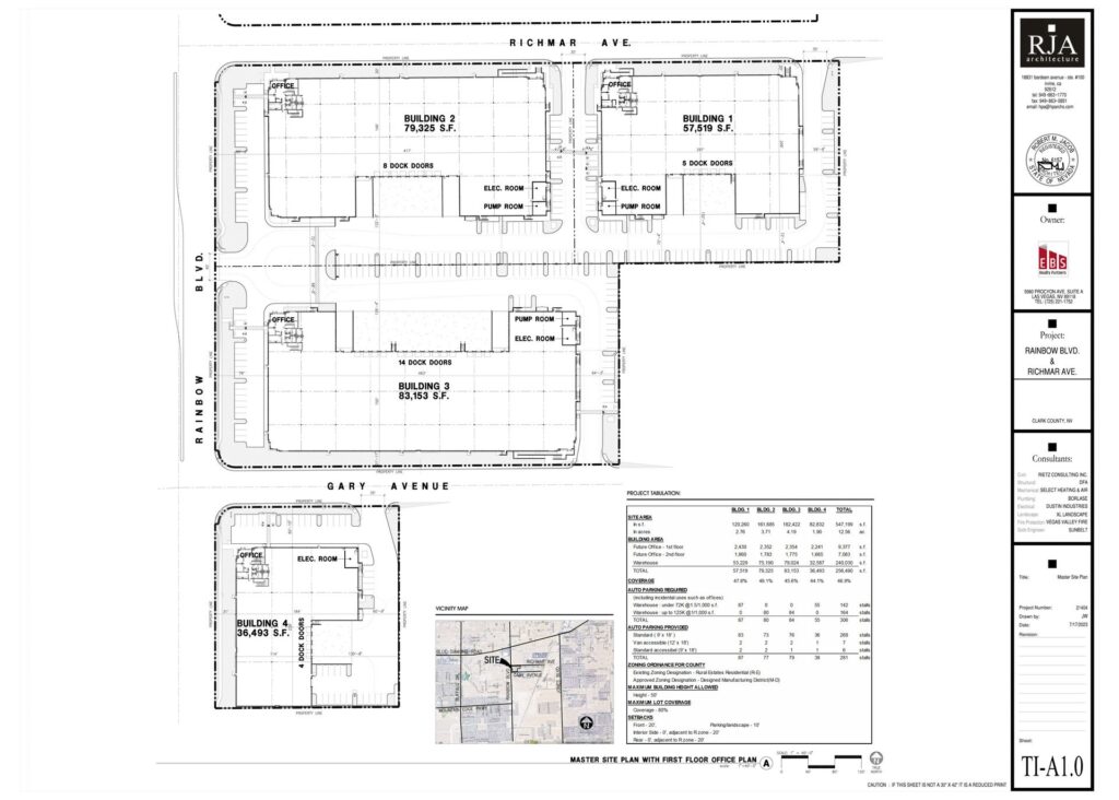
Speculative industrial park development located on Rainbow Blvd just south of Blue Diamond Rd in the Southwest submarket of Las Vegas, NV. Building 1 was sold at completion to an owner user. Buildings 3 & 4 are fully leased and listed for sale.

  • Submarket:

    Southwest Las Vegas, NV
  • Total Project Size:

    256,490 SF
  • Building Square Feet:

    Building 1: 57,519 SFBuilding 2: 79,325 SFBuilding 3: 83,153 SFBuilding 4: 36,493 SF
  • Status:

    Completed
  • Completion Date:

    February 2025
  • Available

Marketing Information

Marketing Update

Building 2 is available for lease or sale. Buildings 3 & 4 are listed for sale as leased investments.

Marketing Team

Sean Zaher
CBRE
(702) 460 0940
sean.zaher@cbre.com