Skip to content
SnakKing Foods Build to Suit

City of Industry, CA

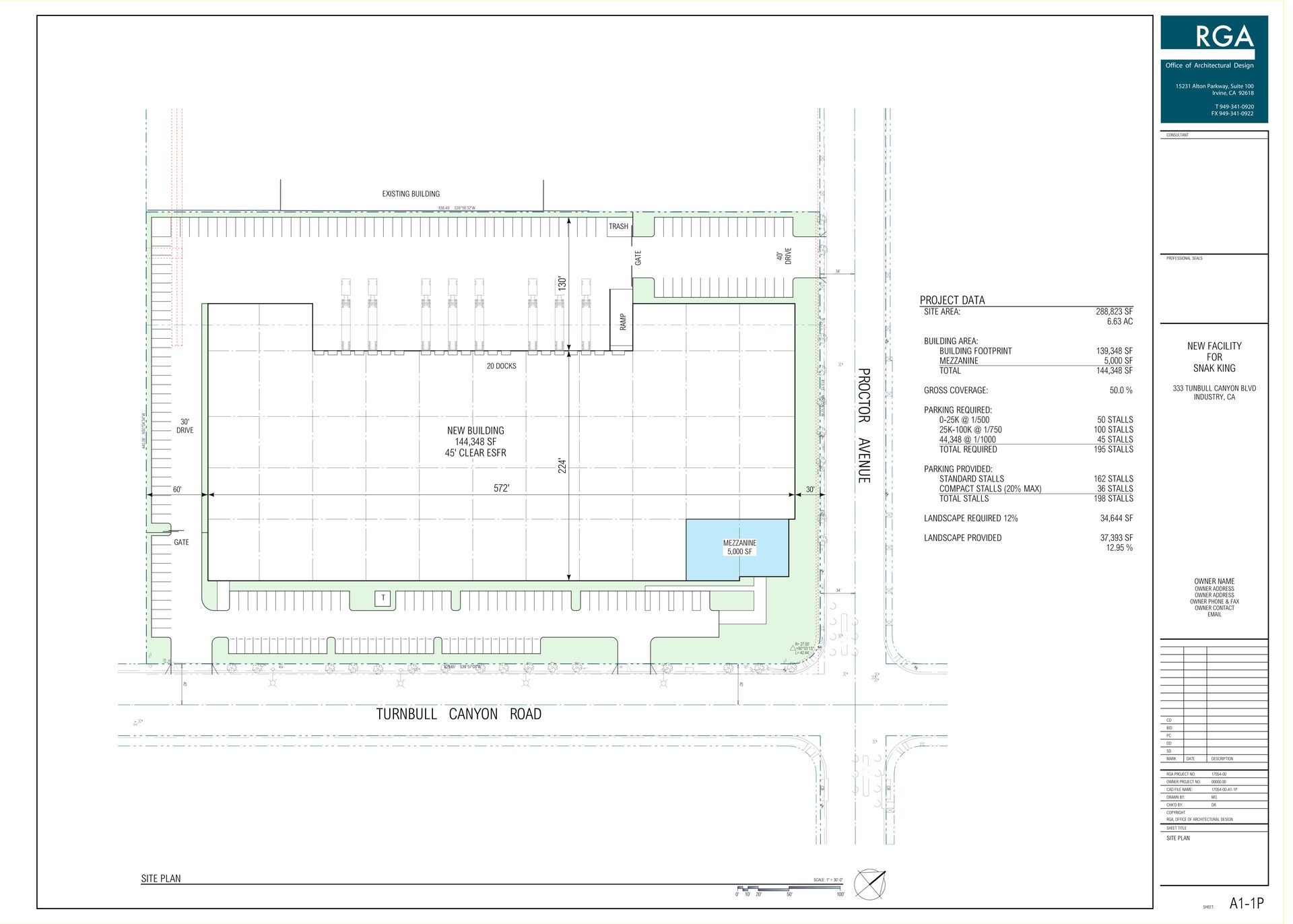
SnakKing Foods Build to Suit

EBS was engaged by SkakKing to entitle and develop a new state of the art industrial building for its distribution operations. The building was entitled in under a month. The clear height was increased to accommodate SnakKing's high pile storage requirements.

  • Submarket:

    San Gabriel Valley, CA
  • Total Project Size:

    148,348 SF
  • Building Square Feet:

    148,348 SF
  • Status:

    Completed
  • Completion Date:

    November 2019