Skip to content
West Sunset Industrial Park

West Sunset Industrial Park

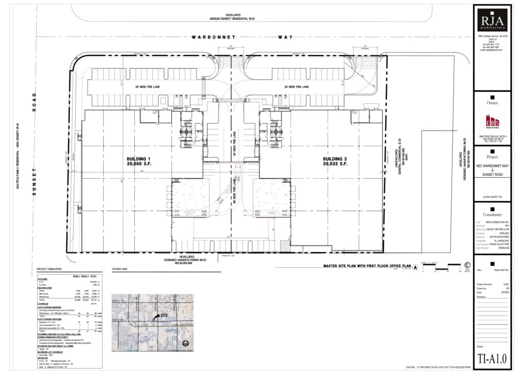
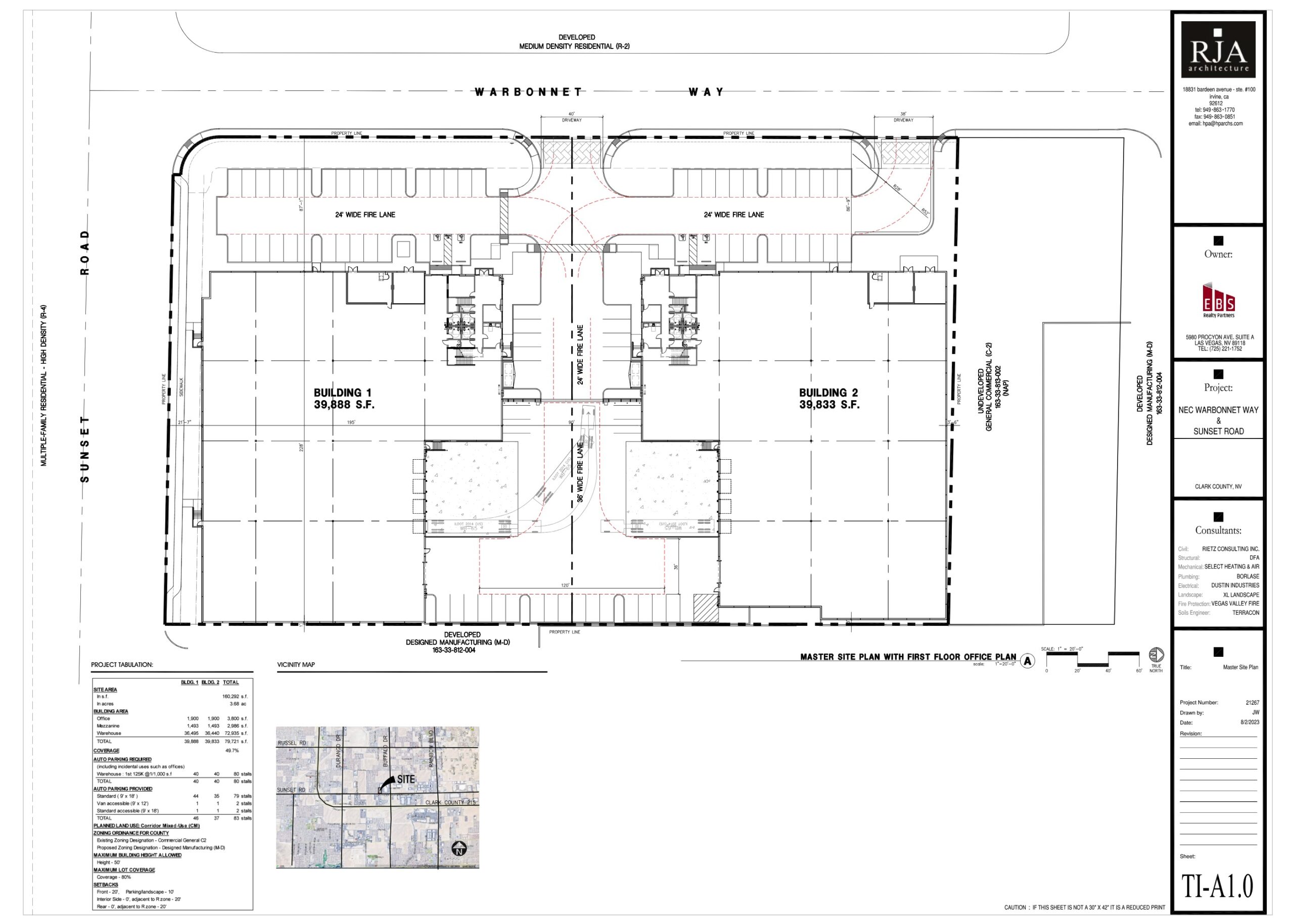
Speculative industrial development located on Sunset Blvd, just west of Buffalo Dr in the heart of the southwest submarket of The Las Vegas Valley. EBS and its investment partner sold Building 1 to an owner user at completion. Building 2 received the 2025 NAIOP Southern Nevada Chapter Spotlight Award for Spec Industrial Building Under 100,000 s.f. and is currently marketed for lease or sale.

  • Submarket:

    Southwest Las Vegas, NV
  • Total Project Size:

    79,721 SF
  • Building Square Feet:

    Building 1: 39,888 SFBuilding 2: 39,833 SF
  • Status:

    Completed
  • Completion Date:

    December 2024
  • Available

Marketing Information

Marketing Update

Building 2 is available for lease or sale.

Marketing Team

Doherty Industrial Group
Colliers
(702) 836 3707
dan.doherty@colliers.com